1. Visión general de los mástiles de aluminio para banderas
Definición y ventajas
Los mástiles de aluminio para banderas suelen estar fabricados con aleaciones de aluminio extruido/soldado o estructuras de ensamblaje segmentado, y presentan ventajas como su ligereza, resistencia a la corrosión, facilidad de procesamiento y atractivo estético. Se utilizan ampliamente en entornos municipales, corporativos, universitarios, residenciales y de eventos.
Los materiales de los mástiles de bandera de Luxman consisten principalmente en aluminio EN AW 6060/6063, complementado con una base de fundición a baja presión A356, que proporciona una gran resistencia estructural y durabilidad adaptada a diversas cargas de viento y escenarios de uso.
Escenarios aplicables: Banderas principales en fachadas, banderas secundarias, patios, señalización vial, soporte temporal de eventos, etc.

Tabla de referencia para la selección de astas de bandera de aluminio
Tabla de referencia de unidades internacionales: Tabla de referencia de altura, diámetro inferior, rango de grosor de pared y tamaño de bandera.
| Rango de altura (m) | Diámetro del fondo (mm) | Gama de espesores de pared (mm) | Escenarios aplicables | Tamaño de la bandera compatible (m²) | Observaciones |
|---|---|---|---|---|---|
| 1.5 - 3.0 | 38 - 76 | 1.5 - 3.0 | Pequeños patios, escaparates, residencias privadas | 0.5 - 1.2 | Adecuada como bandera principal en entornos residenciales o pequeños negocios |
| 3.0 - 6.0 | 60 - 150 | 2.0 - 5.0 | Delante de empresas, colegios, actos comunitarios | 1.2 - 2.5 | Altura moderada con estabilidad y atractivo estético |
| 6.0 - 12.0 | 100 - 200 | 3.0 - 6.0 | Municipal, instalaciones públicas, señalización paisajística | 2.5 - 5.0 | Adecuado para zonas públicas, requiere equilibrio entre estabilidad y estética |
| 12.0 - 15.0 | 150 - 300 | 4.0 - 8.0 | Plazas principales, edificios conmemorativos, arquitectura emblemática | 5.0 - 10.0 | Gran resistencia a la carga del viento, adecuado para zonas de vientos fuertes |
| 15.0 - 30.0 | 200 - 400 | 6.0 - 12.0 | Grandes plazas, emplazamientos urbanos, arquitectura conmemorativa | 10.0 - 20.0 | Diseño de alta resistencia, requiere una verificación estructural detallada |
Tabla de referencia de pies y unidades internacionales: Tabla de referencia de altura, tamaño de bandera y escenarios aplicables.
| Altura (pies) | Rango de altura (M) | Tamaño de la bandera (FT) | Tamaño de la bandera (M) | Superficie de la bandera (FT²) | Superficie de la bandera (M²) | Escenarios aplicables | Observaciones |
|---|---|---|---|---|---|---|---|
| 5 | 1.5 | 2.5 × 4 | 0.76 × 1.22 | 10 | 0.929 | Zonas residenciales/pequeños escaparates, montados en la pared, adecuados para la identificación de fachadas y la decoración de patios | Adecuado para entornos pequeños |
| 6 - 8 | 2.0 | 3 × 5 | 0.91 × 1.52 | 15 | 1.394 | Fachadas de tiendas, entradas de edificios de oficinas medianos, entradas de colegios/eventos comunitarios, casetas de exposiciones | Adecuado para entornos medios |
| 15 | 4.5 | 3 × 5 | 0.91 × 1.52 | 15 | 1.394 | Delante de comercios, entradas de eventos al aire libre, señalización en zonas comerciales, fondos de exposiciones | Adecuado para eventos corporativos |
| 20 | 6.0 | 3 × 5 | 0.91 × 1.52 | 15 | 1.394 | Exterior de sedes de empresas, entradas de grandes eventos, fachadas de centros comerciales y de atracciones | Adecuado para eventos corporativos |
| 25 | 7.5 | 4 × 6 | 1.22 × 1.83 | 24 | 2.230 | Grandes recintos públicos, plazas urbanas, fachadas de estadios, muestras monumentales de arquitectura conmemorativa | Adecuado para entornos grandes |
| 30 | 9.0 | 5 × 8 | 1.52 × 2.44 | 40 | 3.716 | Grandes eventos, centros de exposiciones, fachadas de estadios, salas de conciertos | Adecuado para grandes eventos |
| 40 | 12.0 | 6 × 10 | 1.83 × 3.05 | 60 | 5.574 | Edificios gubernamentales/municipales, actos conmemorativos significativos en plazas, hitos urbanos, ocasiones ceremoniales | Adecuado para ocasiones importantes |
| 50 | 15.0 | 8 × 12 | 2.44 × 3.66 | 96 | 8.919 | Grandes acontecimientos a escala nacional, actividades multinacionales, grandes carteles guía para edificios emblemáticos | Adecuado para acontecimientos importantes y ocasiones emblemáticas |
| 60 | 18.0 | 10 × 15 | 3.05 × 4.57 | 150 | 13.935 | Grandes acontecimientos deportivos, hitos urbanos, banderas principales de ferias comerciales | Adecuado para acontecimientos importantes y ocasiones emblemáticas |
| 70 | 21.5 | 12 × 18 | 3.66 × 5.49 | 216 | 20.067 | Recintos muy grandes, eventos interurbanos, hitos del paisaje urbano | Adecuado para acontecimientos importantes y ocasiones emblemáticas |
| 80 | 24.5 | 15 × 25 | 4.57 × 7.62 | 375 | 34.839 | Acontecimientos mundiales, desfiles del día nacional, actividades internacionales significativas, grandes hitos | Adecuado para entornos grandes |
| 90 | 27.5 | 15 × 25 | 4.57 × 7.62 | 375 | 34.839 | Actos públicos de gran envergadura, competiciones internacionales, amplia visibilidad | Adecuado para entornos grandes |
| 100 | 30.5 | 15 × 25 | 4.57 × 7.62 | 375 | 34.839 | Actos públicos de gran envergadura, competiciones internacionales, amplia visibilidad | Adecuado para entornos grandes |
2. Ventajas principales
Los mástiles de aluminio para banderas se han convertido en la elección mayoritaria para los mástiles modernos debido a su ligereza y a su alta resistencia. Sus principales ventajas residen en la profunda integración de las propiedades del material y la adaptabilidad al escenario. En comparación con los materiales metálicos tradicionales, la densidad de la aleación de aluminio es sólo un tercio de la del acero, pero puede formar una densa película protectora mediante anodización, consiguiendo una durabilidad que puede superar los 15 años en entornos costeros húmedos o zonas industriales, superando con creces los 5 años de vida media de los mástiles de bandera de hierro forjado.
Los aspectos económicos de instalación y mantenimiento también son excepcionales. El diseño modular permite desmontar un solo mástil de bandera de 10 metros en 3-4 segmentos para su transporte. Un equipo de dos personas puede completar el montaje en una hora, y el efecto espejo creado por el proceso de anodización sólo requiere un aclarado trimestral con agua para mantener un aspecto nuevo, lo que ahorra los costes de mano de obra asociados al repintado. Esta característica de "perpetuidad" hace que los mástiles de aluminio para banderas sean especialmente útiles en promociones y exposiciones al aire libre. Junto con una base de PE rellena de agua, pueden alcanzar un nivel de resistencia al viento de 6, equilibrando a la perfección portabilidad y estabilidad.
La estética y el potencial de personalización amplían aún más sus límites de aplicación. Desde el acabado mate blanco plateado de los organismos gubernamentales hasta los coloridos recubrimientos en polvo de las actividades comerciales, los mástiles de aluminio para banderas pueden personalizarse totalmente mediante procesos como la electroforesis y la pulverización, ajustándose a la carta de colores RAL. Durante una celebración reciente, los organizadores combinaron 100 mástiles de aluminio para banderas en una matriz de colores degradados, con una precisión de procesamiento de 0,2 mm que garantizaba una disposición visual disciplinada. Esta calidad integra los estándares industriales con la expresión artística, lo que permite a los mástiles de aluminio realizar tanto ceremonias serias de izado de banderas como servir de soporte para instalaciones artísticas.
Cómo determinar el tamaño y la altura del mástil de la bandera
Opciones de altura comunes (según las normas del mercado)
- Pequeño/patio: aproximadamente 2,0 m (aproximadamente 6,5 pies) - aproximadamente 3,0 m (aproximadamente 10 pies)
- Comercial/Unidad: aproximadamente 3,0 m (aproximadamente 10 pies) - aproximadamente 6,0 m (aproximadamente 20 pies)
- Estándar Municipal/Paisajístico:
- aproximadamente 6,0 m (aproximadamente 20 pies)
- aproximadamente 9,0 m (aproximadamente 30 pies)
- aproximadamente 12,0 m (aproximadamente 40 pies)
- aproximadamente 15,0 m (aproximadamente 50 pies)
- Poste Alto/Conmemorativo:
- aproximadamente 18,0 m (aproximadamente 60 pies)
- aproximadamente 20,0 m (aproximadamente 65 pies)
- aproximadamente 25,0 m (aproximadamente 80 pies)
- aproximadamente 30,0 m (aproximadamente 100 pies)
Diámetro y espesor de pared (varían según la altura/velocidad del viento)
- Pequeño (≤ 3 m aproximadamente): Diámetro del fondo aprox. 38-76 mm (aproximadamente 1,5-3,0 pulg.)Espesor de pared 1,5-3,0 mm (aproximadamente 0,059-0,118 pulg.)
- Mediana (aproximadamente 3-12 m): Diámetro del fondo aprox. 60-150 mm (aproximadamente 2,4-5,9 pulgadas)Espesor de pared 2,0-5,0 mm (aproximadamente 0,079-0,197 pulg.), estructura a menudo cónica/segmentada
- Alto (> aproximadamente 12 m): Diámetro inferior aproximadamente 150-400+ mm (aproximadamente 5,9-15,7 pulgadas)Espesor de pared 4,0-12,0 mm (aproximadamente 0,157-0,472 pulg.), es necesario tener en cuenta las cargas del viento y la verificación estructural
Comparaciones específicas y personalización
- El diámetro/espesor real de la pared debe diseñarse en función del área de la bandera, la clasificación de la zona de viento, el entorno de exposición y los factores de seguridad. Los fabricantes suelen proporcionar tablas comparativas de "diámetro de mástil de bandera por altura" y planes de personalización.
Cómo elegir el tratamiento superficial y la durabilidad de los mástiles para banderas
Existen cuatro opciones principales de tratamiento de la superficie:
Anodizado
- Espesor de película estándar: 15 μm, adecuado para zonas costeras, mejorando eficazmente la resistencia a la corrosión y la dureza de la superficie.
- Opciones de color: negro, bronce oscuro, bronce medio, bronce claro, color natural transparente, etc.
- Características: Buen rendimiento con un moderno aspecto gris plateado, cumple con las normas ISO 7599, el espesor de la película se puede ajustar según sea necesario.
Revestimiento de fluorocarbono
- Características: Excelente resistencia a la decoloración, propiedades anticontaminación y resistencia a los rayos UV, adecuado para entornos marinos.
- Ayuda a prolongar eficazmente la vida útil del producto.
Recubrimiento en polvo
- Características: Ricos colores, excelente resistencia a la intemperie, alta retención del color.
- Opciones de color: varios colores disponibles, como negro, blanco, gris plateado, bronce oscuro, verde oscuro, etc.
- Suelen estar certificados por sistemas de inspección como Qualicoat, que garantizan la calidad del revestimiento.
Impresión por transferencia de agua
- Características: Puede lograr diseños de grano de madera y otras texturas, mejorando la diversidad de apariencia y el atractivo estético.
Variación y coherencia del color
- Nota de variación de color: El anodizado puede presentar variaciones de color debidas a diferencias de lote. Si se requiere una consistencia estricta, se recomienda el recubrimiento en polvo o el recubrimiento de fluorocarbono.
- Adaptabilidad ambiental: Para los entornos costeros, se recomienda dar prioridad a las opciones de tratamiento de superficies de mayor calidad.
Durabilidad y mantenimiento
- En entornos costeros o altamente corrosivos, se recomienda un enfoque de protección multicapa (por ejemplo, una combinación de anodizado y revestimiento en polvo), junto con un mantenimiento e inspección periódicos.
- La inspección del revestimiento debe incluir el espesor de la película, pruebas de niebla salina, adherencia, etc. Se recomiendan informes de inspección de calidad para garantizar la calidad del producto.
Opciones de tratamiento de superficies de Luxman
Luxman ofrece varias opciones de tratamiento de superficies, entre ellas:
- Anodizado: Capa anodizada estándar de aproximadamente 15 μm y ajustable según sea necesario.
- Recubrimiento en polvo: Ofrece una gran variedad de colores y una gran resistencia a la intemperie.
- Combinaciones de revestimientos: Como el anodizado combinado con otros revestimientos para prolongar la vida útil del producto.
- La impresión por transferencia de agua y otros procesos se utilizan para conseguir efectos de color específicos, pero debe prestarse atención a las posibles variaciones de color naturales y a las diferencias de material asociadas al anodizado.
Cómo calcular el mástil y el tamaño de las banderas
Si la proporción entre el mástil y la bandera no se ajusta a las recomendaciones, el resultado será un aspecto incómodo y poco atractivo. Por lo tanto, elegir el tamaño adecuado de la bandera es crucial para garantizar que el mástil sea estéticamente agradable y cumpla las directrices sobre la proporción entre mástil y bandera.
Lo más sencillo es utilizar una calculadora, como la calculadora de altura del mástil y tamaño de la bandera: https://actionflag.com/blogs/american-flag-insights-and-updates-from-action-flag/flag-size-calculator-for-perfect-proportions
En el caso de la bandera estadounidense, su tamaño debe ser de un cuarto a un tercio de la altura del mástil. Es importante tener en cuenta que el tamaño adecuado de la bandera puede variar en función de las circunstancias específicas de la instalación. Por ejemplo, los tamaños requeridos para los mástiles enterrados y los montados en la pared pueden diferir.
Puede consultar la hoja de especificaciones de selección anterior:
- montada en la pared; altura 1,5 m; tamaño de la bandera 2,5×4 pies; superficie de la bandera 0,929 m².
- montada en la pared; altura 2,0 m; tamaño de la bandera 3×5 pies; superficie de la bandera 1,394 m².
- en el suelo; altura 4,5 m (15′); tamaño de la bandera 3×5 pies; superficie de la bandera 1,394 m²
- en el suelo; altura 6,0 m (20′); tamaño de la bandera 3×5 pies; superficie de la bandera 1,394 m²
- en el suelo; altura 7,5 m (25′); tamaño de la bandera 4×6 pies; superficie de la bandera 2,230 m².
- en el suelo; altura 9,0 m (30′); tamaño de la bandera 5×8 pies; superficie de la bandera 3,716 m².
- en el suelo; altura 12,0 m (40′); tamaño de la bandera 6×10 pies; superficie de la bandera 5,574 m².
- en el suelo; altura 15,0 m (50′); tamaño de la bandera 8×12 pies; superficie de la bandera 8,919 m².
- en el suelo; altura 18,0 m (60′); tamaño de la bandera 10×15 pies; superficie de la bandera 13,935 m².
- en el suelo; altura 21,5 m (70′); tamaño de la bandera 12×18 pies; superficie de la bandera 20,067 m².
- en el suelo; altura 24,5 m (80′); tamaño de la bandera 15×25 pies; superficie de la bandera 34,839 m².
- en el suelo; altura 27,5 m (90′); tamaño de la bandera 15×25 pies; superficie de la bandera 34,839 m².
- en el suelo; altura 30,5 m (100′); tamaño de la bandera 15×25 pies; superficie de la bandera 34,839 m².
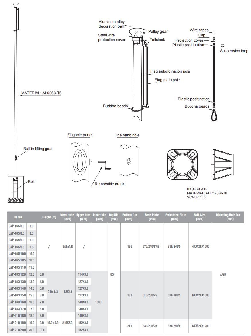
Accesorios y sistemas estructurales
Tipo 1
tipo 2
Cómo determinar los proveedores de astas de bandera: Normas no negociables
- Certificación de fabricación
Garantizamos el cumplimiento de las normas GB/T 3190-1996 (aleación de aluminio) e ISO 5817 (calidad de la soldadura). Nuestra fábrica mantiene los estándares de soldadura de Grado A, y las pruebas ultrasónicas garantizan que el índice de porosidad de las uniones críticas sea <0,1 mm. - Capacidad de ingeniería
Exigir el uso del análisis de elementos finitos SAP2000 para los cálculos de carga de viento. Por ejemplo, el coeficiente de esfuerzo de nuestro diseño de mástil de bandera montado en el tejado es de 0,266, muy por debajo del umbral de seguridad estructural de 0,6. - Protocolo de pruebas
Nuestro control de calidad incluye:- Control de tamaño 100% (tolerancia ±0,5 mm)
- Prueba de niebla salina de 48 horas (norma ASTM B117)
- Prueba de carga dinámica a una velocidad del viento de diseño de 125%.
Preguntas frecuentes sobre mástiles para banderas (FAQ)
P: ¿Cuáles son las combinaciones habituales de altura y diámetro de los mástiles de aluminio para banderas?
R: Las alturas habituales abarcan 3, 6, 9, 12, 15, 18, 20, 25, 30 m; el diámetro y el grosor de la pared varían en función de la altura y la carga de viento, según las especificaciones del fabricante.
P: ¿Qué es más duradero, el anodizado o el recubrimiento en polvo?
R: El anodizado es resistente al desgaste y a la corrosión; el recubrimiento en polvo ofrece diversos colores y una buena resistencia a la intemperie. En entornos costeros, suelen elegirse combinaciones de revestimientos de mayor calidad y se aplica protección adicional cuando es necesario.
P: ¿Cómo deben tenerse en cuenta las cargas de viento?
R: Los cálculos de la presión del viento deben basarse en las normas locales de velocidad del viento (ASCE 7 / EN 1991-1-4, etc.), combinadas con el área proyectada de la bandera y la altura de instalación para las comprobaciones de momento y deflexión, seleccionando perfiles que cumplan los requisitos de resistencia y rigidez.
P: ¿Ofrecen personalización y muestras?
R: Sí, envíenos la altura, la anchura de la bandera, el grado de velocidad del viento, el tratamiento de la superficie y los requisitos de cantidad, y podremos proporcionarle planos de muestra y presupuestos.
P: ¿Pueden facilitar un enlace para descargar las tablas de tallas y pesos?
R: Sí, póngase en contacto con [email protected].
Referencias y fuentes autorizadas
- - ASTM International - ASTM B221: Especificación estándar para barras, varillas, alambres, perfiles y tubos extruidos de aluminio y aleaciones de aluminio. https://www.astm.org/standards/b221.htm
- - Comité Europeo de Normalización - EN 1991-1-4: Acciones sobre las estructuras - Acciones generales - Acciones del viento. https://eurocodes.jrc.ec.europa.eu/showpage.php?id=138
- - ISO 7599: Anodizado del aluminio y sus aleaciones - Especificaciones generales para revestimientos de oxidación anódica. https://www.iso.org/standard/63262.html
- - ASCE - ASCE/SEI 7: Cargas mínimas de diseño y criterios asociados para edificios y otras estructuras. https://law.resource.org/pub/us/cfr/ibr/003/asce.7.2002.pdf
- - Referencia de densidad y propiedades de materiales: MatWeb Datos de propiedades de materiales - Aluminio y aleaciones de aluminio. https://www.matweb.com/
- - Referencia de revestimiento/resistencia a la intemperie: Norma de recubrimiento Qualicoat para aluminio con recubrimiento en polvo. https://www.qualicoat.net/main/specifications.html
Nota: Las normas y especificaciones anteriores son orientativas para el diseño y la verificación; los proyectos específicos deben cumplir la normativa obligatoria y los informes de inspección del país/región correspondiente. Para obtener cálculos de selección detallados, tablas de tamaños o tablas de pesos (incluido CAD/BIM) basados en los parámetros del proyecto, envíe información a [email protected] (indicando la ubicación del proyecto, la velocidad del viento prevista, la anchura de la bandera y la altura deseada).




